分譲地

【久留米】エテルナガーデンズ国分 Update

久留米市国分町字宮ノ脇744-3他
子育て支援が充実している久留米市、中心市街地から程よく離れた環境での暮らしをお考えの方におススメの立地です。

  【エテルナガーデンズ国分】家族の未来が輝く、育みのステージ。 ■校区 東国分小学校/明星中学校

  • 様々なスーパーやショップ、レストランが並ぶ上津、国分バイパスに近い立地
  • 高度な医療が受けられる「久留米大学医療センター」や日常の買い物に助かる「ハローデイ国分店」が徒歩10分圏内
  • 2025年10月、市内の高良内町と藤山町にまたがる場所に「久留米南スマートインターチェンジ(仮称)」が設置計画が発表され、高速道路へのアクセスがさらに便利に

■現地・周辺環境

閑静な住宅地としての側面も持ちつつ、上津バイパス、国分バイパスともにほど近いのでスーパーや飲食店などの生活に必要な施設が揃っています。

高速道路のIC計画により、毎日の暮らしやレジャーなど生活利便性の向上が見込まれます。

ハローデイ国分店まで約690~720m(徒歩約9分)

東国分小学校まで約530~560m(徒歩約7分)

明星中学校まで約1,200m(徒歩約14分)

国分公園まで約510~540m(徒歩約7分)

久留米大学医療センターまで約510~540m(徒歩約7分)

西鉄「松山」バス停まで約160~190m(徒歩約2~3分)

■区画図・価格表

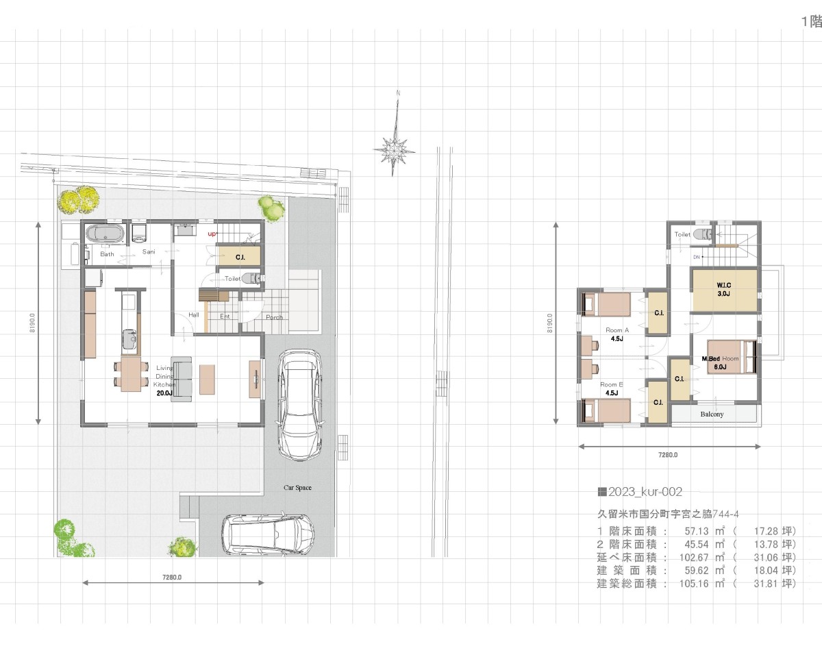
■この分譲地【東面整形地:173.66㎡ (52.53坪)】に建てられる、建物・参考プラン

*平屋の場合

【販売価格】43,500,000円(税込)

【費用内訳】建物本体工事・土地代金・太陽光・外構含む

※照明・カーテン工事など諸経費は別途必要

【支払い例】

当社提携ネット銀行/金利:0.784%

返済期間:50年

月々 68,515円

ボーナス月 115,017円

*2階建ての場合

【販売価格】46,000,000円(税込) ※2026年2月1日より価格改定

【費用内訳】建物本体工事・土地代金・照明・カーテン工事

※諸経費は別途必要

【支払い例】

当社提携ネット銀行/金利:0.784%

返済期間:50年

月々 68,515円

ボーナス月 145,285円

物件概要

物件所在地
久留米市国分町字宮ノ脇744-3他
交通利便性
西鉄「松山」バス停 まで 徒歩約2~3分
名称
【久留米】エテルナガーデンズ国分
所在地
久留米市国分町字宮ノ脇744-3他
地目
宅地
現況
造成完了済
区域区分
市街化区域
用途地域
商業地域
建ぺい率
80%
容積率
400%
道路幅員
公道 約4m(東側)、公道 3.2m(北)
設備等
電力:九州電力、水道:公営
総区画数
全2区画
今回販売区画数
1区画
土地面積
173.66㎡ (52.53坪)
販売価格
12,900,000円
取引形態
売主
情報更新日
2026年2月11日
次回情報更新予定日
2026年3月31日
取引条件の有効期限
2025年11月30日
資料請求あり
1
都市計画
制限なし
地区計画
特になし
私道負担の有無・面積
負担金
特になし
工事完了予定日
造成完了済
備考
建築条件付宅地
販売事業所の情報
㈱谷川建設 久留米営業所 
当社名称または商号
久留米市小森野5-14-28 フォレスト小森野1F
・土木建築請負業〈国土交通大臣 (特-4)第8964号〉
・宅地建物取引業〈国土交通大臣(12)第002861号〉
建築条件付宅地
  • この土地は、土地売買契約締結後3ヶ月以内に当社と建物請負契約を締結して頂く事を条件として販売します。この期間内に建物請負契約が成立しなかった場合には、土地売買契約は白紙となり、申込金その他お預りした金銭は全額(契約書に貼り付けた印紙代を除く。) 無利息でお返し致します。

お問い合わせ先

〒830-0001 久留米市小森野5-14-28 フォレスト小森野1F
フリーダイヤル 0120-89-3551
TEL 0942-36-7757 / FAX 0942-36-7739