建売
【長崎】さくら野107号地 (2026年7月下旬完成予定) NEW
長与さくら野
長与町は JR長崎本線の駅が複数あり、長崎市中心部へのアクセスが容易です。
幼児教育から大学までが町内に揃っており、県内トップクラスの学力を誇るなど、教育熱心な地域としても知られています。
その長与町さくら野に新しく建つ谷川建設の家、一度体験してみてください。
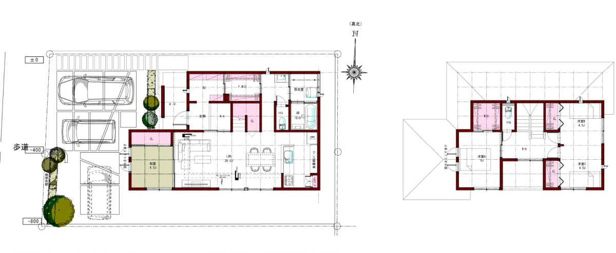
家族が自然にリビングに集まる間取り
おすすめPOINT‼
・LDKと和室で24.5帖の広々した空間
・シューズクロークからファミリークローゼットに直接行ける
・天気を気にせず使えるインナーバルコニー
・暮らしをすっきり整えるたっぷり収納
・車3台停められる駐車スペース
4LDK 2階建て 56,500,000円
※パース全てイメージです
物件概要
名称
さくら野107号地
所在地
長与さくら野
物件所在地
西彼杵郡長与町高田郷
交通利便性【最寄り公共交通機関・時間】
長崎バス「高田越」バス停まで徒歩約11分(650m)
JR長崎本線「道ノ尾」駅まで徒歩約13分(800m)
JR長崎本線「道ノ尾」駅まで徒歩約13分(800m)
物件種別
新築戸建て
総戸数
1
今回販売戸数
1
建物面積
78.66㎡(23.79坪)
土地面積
115.93㎡(35.06坪)
販売価格
56,500,000円
建物の主たる部分の構造
木造
建物の建築年月
2026年7月下旬完成予定
引渡可能年月
相談
都市計画
市街化区域
地区計画
長与さくら野地区計画
用途地域
第一種住居地域
第一種中高層住居専用地域
第一種中高層住居専用地域
建ぺい率
60%
容積率
200%
道路幅員
6m、12m
私道負担
無し
設備等
電気:九州電力
上水道:公営水道
汚水排水:公共下水
ガス:集中プロパン
上水道:公営水道
汚水排水:公共下水
ガス:集中プロパン
負担金
無し
取引形態
売主
備考
特になし
取引条件の有効期限
2026年12月
情報更新日
2026年3月
次回情報更新予定日
2026年8月
販売事業所の情報
(株)谷川建設 長崎支店
当社名称または商号
〒852-8115 長崎市岡町9-1
フリーダイヤル 0120-65-3551
TEL 095-848-3551
建設業許可:国土交通大臣許可(特4)第8964号
宅地建物取引業免許:国土交通大臣(12)第002861号
一級建築士事務所登録:長崎県知事登録 第(21)-10015号
フリーダイヤル 0120-65-3551
TEL 095-848-3551
建設業許可:国土交通大臣許可(特4)第8964号
宅地建物取引業免許:国土交通大臣(12)第002861号
一級建築士事務所登録:長崎県知事登録 第(21)-10015号
お問い合わせ先
〒852-8115 長崎市岡町9-1
フリーダイヤル 0120-65-3551
TEL 095-848-3551 / FAX 095-848-2157